WYBRANE PROJEKTY
TYP OBIEKTU
- KONCEPCJE
- MIESZKANIOWE
- REMONTY
- USŁUGOWE
DATA
- 2012
- 2011
- 2010
- 2006
- 2005
- 2000
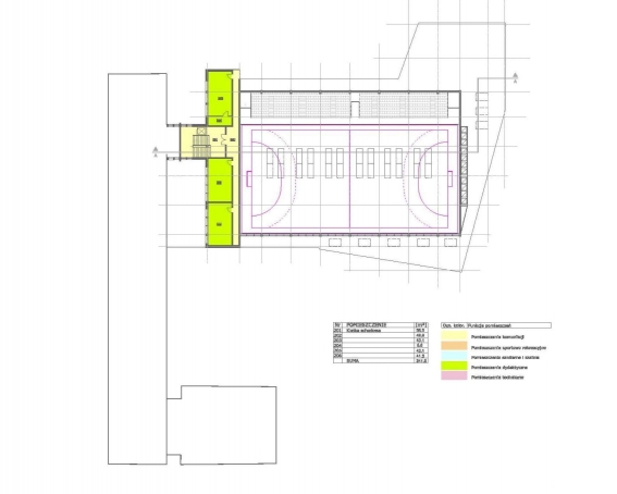
SALA SPORTOWA
Koncepcja architektoniczna sali sportowej przy szkole podstawowej nr 14 w Przemyślu, 2010
«
POWRÓT
architekci.przemysl.pl
©
- wszelkie prawa zastrzeżone
Realizacja -
Nano WEB